Lokal za izdavanje, Centar, 640€, 64m²




















640 €
- 1. sprat
- Uobičajeno stanje
- Oglas oglašava agencija pod reg. brojem 1436
- Godina izgradnje: 2000.
Opis oglasa
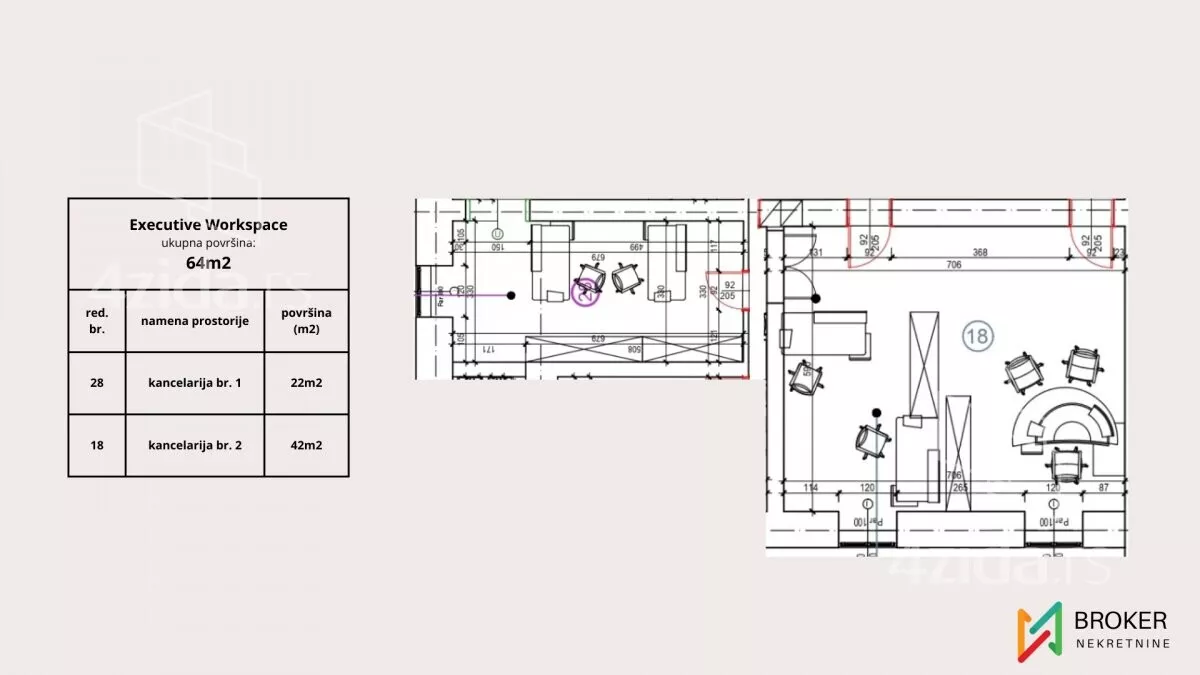
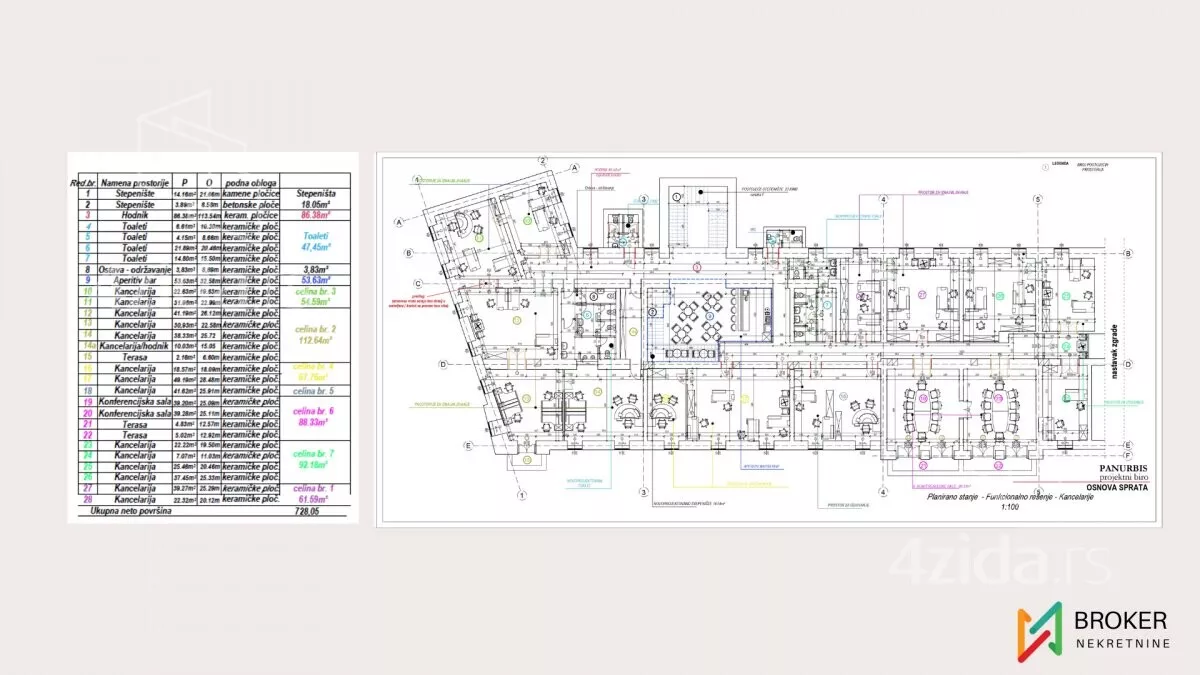
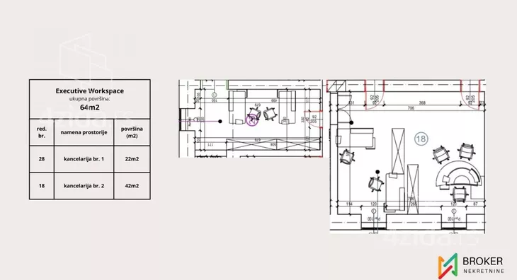
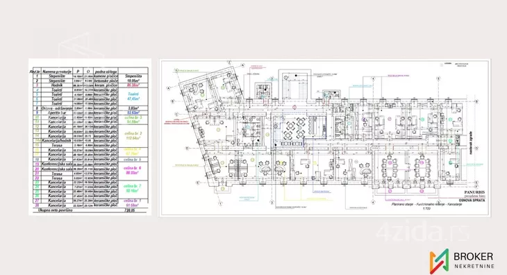
Prostor od 64m², precizno oblikovan kao executive workspace — za direktore, advokate ili menadžere kojima je potrebna kombinacija mira, prestiža i potpune funkcionalnosti. Poslovni prostor se sastoji od:- Kancelarije br. 1 - 22m2- Kancelarije br. 2 - 42m2Takođe poseduje:- Salonski ulaz – Iz gradskog parka nezavisan od ostalih poslovnih prostora- Zajednički aperitiv bar (moguću kuhinju) od 54m2- Mogućnost korišćenja 4 toaleta koji se nalaze u Poslovnoj zgradi- Grejanje – Toplotna pumpa (Najekonomičniji vid zagrevanja poslovnih prostora)- Hlađenje - Toplotna pumpa (Centralni sistem hlađenja)- Internet – Kompletnu optičku infrastrukturu po kancelarijama- Pod - Kompletno rekonstuisan i obložen pločicama- Zidovi i plafoni – Potpuno rekonstruisani- Instalacije – Rekonstruisana strujna(150kw - kapacitet poslovne zgrade) vodovodna i kanalizaciona- Parking mesta – U dvorištu sa mogućnošću mesečnog zakupa- Orijentacija – Dvostrano orijentisanUslovi zakupodavca:- Minimalni zakup: 2 Godine- Depozit: 3 Kirije- Garantovana kirija za vreme trajanja ugovora- UgovorCena parking mesta iznosi: 120 evraSve adaptacije prostora koji datira iz 1890. godine (renoviranje) su vršene 2024. godine dok je rekonstrukcija konstrukcije zgrade urađena 2019. godineAgencijska provizija za posredovanje: 50 % od cene zakupa (Jednokratno)__________________________________________________________________________________________________________________Broker NekretnineBroker AleksandarKancelarija: Karađorđeva 2a
*Sačuvaj oglas uz belešku i primaj obaveštenja o njihovom pojeftinjenju ili pojavljivanju sličnih
Prikaz poslovnog prostora na mapi
Kontakt oglašivača
Krediti OTP banke
Period otplate
13 mesecimesečno
Period otplate 13 - 71 mesec
Saznaj više
