Reklama

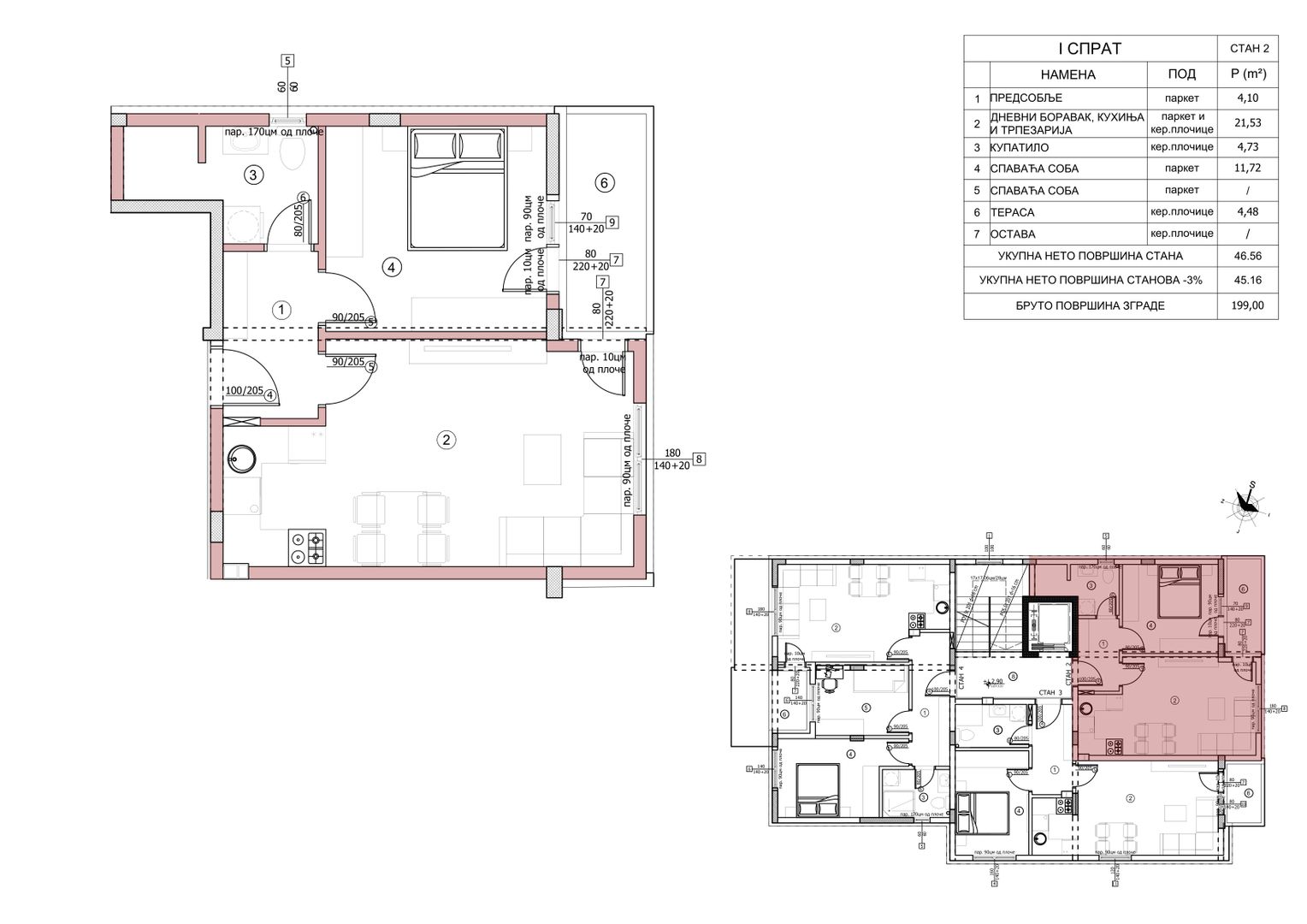
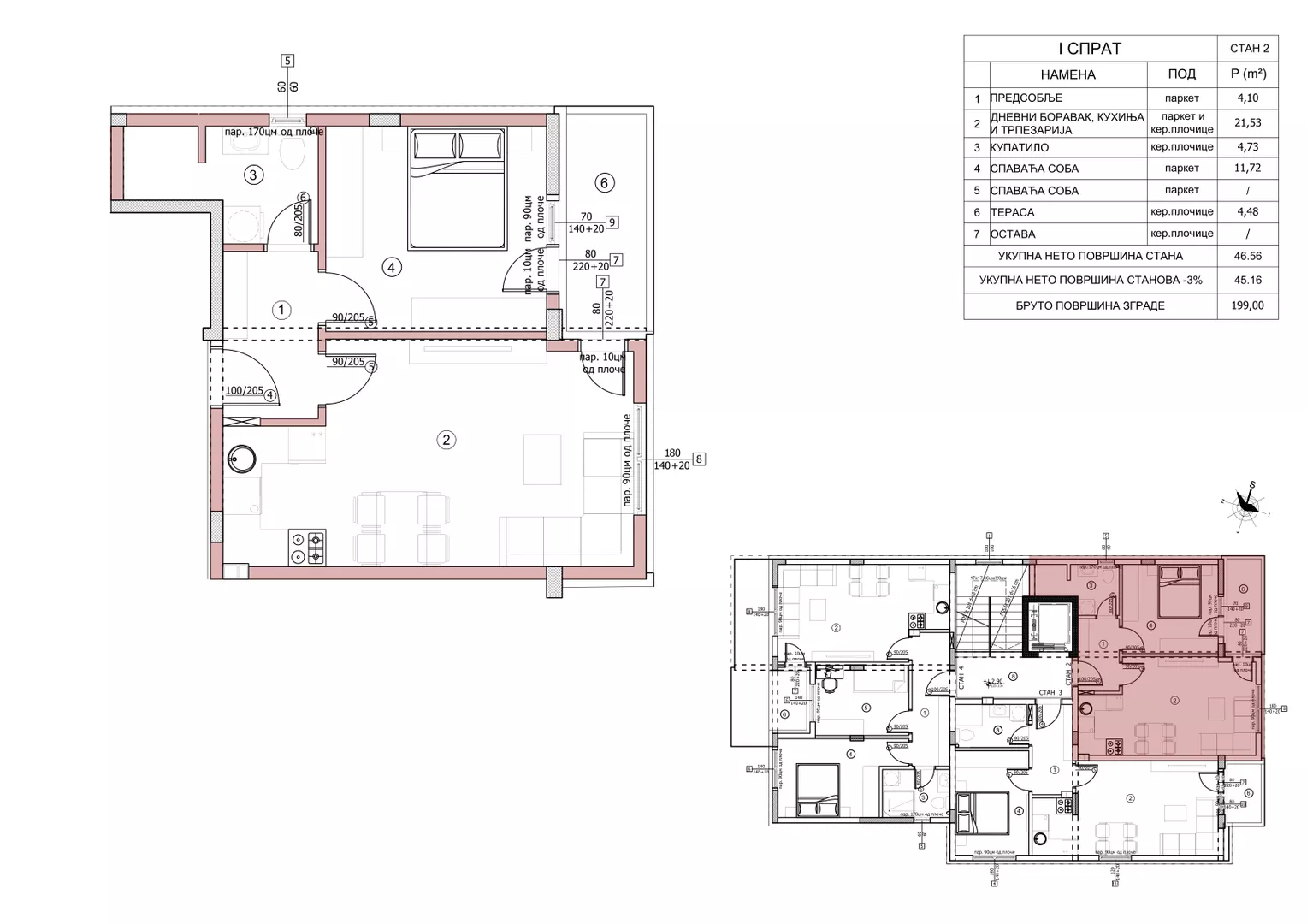
Jednoiposoban stan na prodaju, Novogradnja, Pantelej, 88464€, 46.56m²

Pantelej, Gradske lokacije, Niš
Jednoiposoban stan | 4zida
Jednoiposoban stan | 4zida

od 88.464 €

1.900 € / m2

Jednoiposoban stan
46.56m²
1/4 sprata
U procesu uknjižavanja

O stanu
  • Status izgradnje: U izgradnji
  • Status prodaje: Na prodaju
O zgradi
  • Podno grejanje
  • Energent: Struja
  • Materijal gradnje: Cigla
  • Stolarija: PVC
  • Podovi: Pločice
  • Energetski pasoš: Da
  • Prodaja parkinga: Dostupno
  • 1 lift
  • Kalorimetar: Da
  • Godina izgradnje: 2027.

Ovaj oglas je deo projekta
Pantelej Garden

Centar HousePantelej, Gradske lokacije, Niš
pozadinska slika

O projektu oglašivača Centar House

Novo!

Počinje izgradnja stambene zgrade PO+PR+4 sprata na Panteleju.

Zgradu gradi renomirani investitor sa preko 15 godina iskustva u gradnji i preko 10 završenih i useljenih zgrada u svim delovima Niša. Zgrada ima 4 sprata sa 13 stanova, svaki stan je detaljno projektovan kako bi bio što funkcionalniji, što možete i da se uverite na skicama. Za grejanje je predviđen kotao na struju i podno grejanje u svim stanovima, PVC nemačka stolarija sa aluminijumskim roletnama a na zgradi će biti demit fasada 10 cm kao toplotna izolacija. Pločice u kuhinji i kupatilu su prva klasa u Enmonu tako da investitor izuzetno brine o kvalitetu, ali i estetici samih stanova.

U toku je akcijska cena za prva 3 kupca, svaki kupac dobija popust od 100 eu po m2, odnosno imate sniženje cene sa 1900 eu po m2 na 1800 eu po m2 sa PDV-om. Kupac prvog stana ima pravo na povraćaj PDV-a do 10%.





Krediti OTP banke

OTP bank logo

Bez troškova obrade kredita
NKS 4.50% - EKS 5.74%
Period otplate 96 -360 meseca

Saznaj više

Prikazana rata odnosi se na maksimalni period otplate. Kalkulator je informativnog karaktera.

* Nakon isteka 5 godina, prelazi se na varijabilnu kamatnu stopu


Osiguranje domaćinstva online

Osiguraj svoje domaćinstvo u slučaju požara...