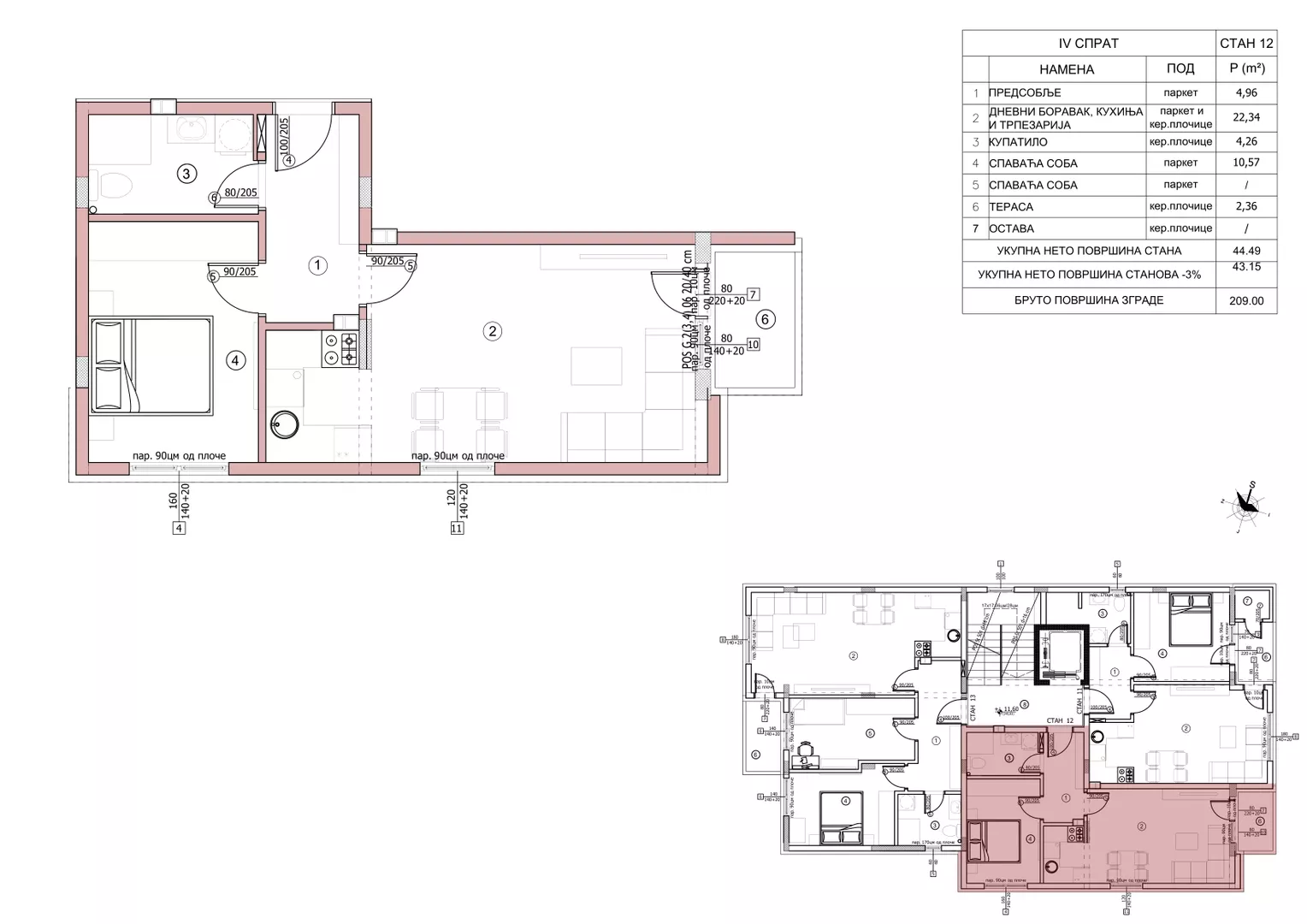
Jednoiposoban stan na prodaju, Novogradnja, Pantelej, 84531€, 44.49m²


od 84.531 €
1.900 € / m2
- Status izgradnje: U izgradnji
- Status prodaje: Na prodaju
- Podno grejanje
- Energent: Struja
- Materijal gradnje: Cigla
- Stolarija: PVC
- Podovi: Pločice
- Energetski pasoš: Da
- Prodaja parkinga: Dostupno
- 1 lift
- Kalorimetar: Da
- Godina izgradnje: 2027.
Ovaj oglas je deo projekta
Pantelej Garden

O projektu oglašivača Centar House
Novo!
Počinje izgradnja stambene zgrade PO+PR+4 sprata na Panteleju.
Zgradu gradi renomirani investitor sa preko 15 godina iskustva u gradnji i preko 10 završenih i useljenih zgrada u svim delovima Niša. Zgrada ima 4 sprata sa 13 stanova, svaki stan je detaljno projektovan kako bi bio što funkcionalniji, što možete i da se uverite na skicama. Za grejanje je predviđen kotao na struju i podno grejanje u svim stanovima, PVC nemačka stolarija sa aluminijumskim roletnama a na zgradi će biti demit fasada 10 cm kao toplotna izolacija. Pločice u kuhinji i kupatilu su prva klasa u Enmonu tako da investitor izuzetno brine o kvalitetu, ali i estetici samih stanova.
U toku je akcijska cena za prva 3 kupca, svaki kupac dobija popust od 100 eu po m2, odnosno imate sniženje cene sa 1900 eu po m2 na 1800 eu po m2 sa PDV-om. Kupac prvog stana ima pravo na povraćaj PDV-a do 10%.
Krediti OTP banke
Saznaj više
Prikazana rata odnosi se na maksimalni period otplate. Kalkulator je informativnog karaktera.
* Nakon isteka 5 godina, prelazi se na varijabilnu kamatnu stopu

