Četvorosoban stan na prodaju, Bulevar Vudroa Vilsona, 410.000€, 104m²








































410.000 €
3.942 € / m2
- Centralno grejanje
- Uobičajeno stanje
- Prostorije: terasa
- Opremljenost: interfon
- Nije uknjiženo
- Oglas oglašava agencija pod reg. brojem 759
- 3 lifta
Opis oglasa
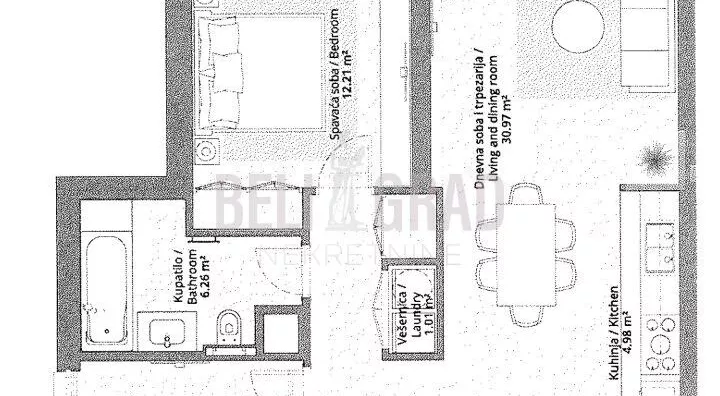
U prilici smo da vam ponudimo prostran, svetao penthouse (cetvorosoban stan) ukupne površine 104 m2 koji se nalazi na 23. spratu luksuznе zgradе BW Verde u Beogradu na vodi. Objekat je jedan od bolje pozicioniranih objekata savremene arhitekture i elegantne fasade sa recepcijom, obezbeđenjem. Odlična povezanost sa svim delovima grada, brz izlaz na autoput, blizinа reke, šetališta, restorana, kafića i svih potrebnih sadržaja, savršeno za savremeni urbani način života. Vrlo sunčan i svetao, nalazi se na odličnoj poziciji, tako da obiluje prirodnom svetlošću tokom celog dana, sa prelepim panoramskim pogledom na grad Beograd, trzni centar Galerija, dvostrano orijentisan. Stan je po strukturi cetvorosoban, odličnog rasporeda, sastoji se iz komfornog dnevnog boravka povezanog sa kuhinjsko-trpezarijskim delom (open-space) koji ima izlaz na terasu, 3 spavaće sobe,(od kojih je jedna soba master sa sopstvenim kupatilom), 3 mokrih čvora , vešernice, terase, ostave. Stan opremljen novim nameštajem i tehnikom. Grejanje je centralno i plaća se po utrošku. Stan se prodaje sa namestajem i belom tehnikom, Stanu pripada stanarska ostava u podzemnom nivou zgrade. Postoji mogućnost kupovine garažnog mesta uz doplatu . Prostorije: dnevni boravak sa kuhinjsko trpezarijskim delom, tri spavaće sobe,tri mokrih cvora , terasa, vešernica, hodniki, ostava. Agencijska provizija 2%
*Sačuvaj oglas uz belešku i primaj obaveštenja o njihovom pojeftinjenju ili pojavljivanju sličnih
Prikaz stana na mapi
Parkovi u blizini
- Park Bristol6 min
- Savski park8 min
- Park Luke Ćelovića9 min

Obeležja kulture u blizini
- Zgrada Železničke stanice6 min
- Krst sa Male pijace7 min
- Manakova kuća7 min

Škole/Fakulteti/Vrtići u blizini
- Osnovna škola (Osnovna škola Radojka Lakić)6 min
- Srednja škola (Škola za brodarstvo, brodogradnju i hidrogradnju)5 min
- Vrtić (Dečiji vrtić Futurino)4 min
- Fakultet (Fakultet za medije i komunikacije)6 min

- Bolnica (Opšta bolnica Euromedik)6 min
- Klinika (Poliklinika Rea Medika)12 min
- Teretana (Ashtanga Yoga Beograd)7 min
- Prodavnica (Maxi Supermarket)2 min
- Restoran (Restoran Red queen)4 min
- Kafana (Oranje Rugby Pub)10 min
- Taksi stajalište (Taxi stanica)7 min
- Autobuska stanica (Savski Most)3 min
- Tramvajska stanica (Ekonomski Fakultet)4 min
- Trolejbuska stanica (Terazije)15 min
- Banka (Banca Intesa)7 min
- Pošta (Pošta Beograd 44)4 min
Kontakt oglašivača
Krediti OTP banke
Saznaj više
Prikazana rata odnosi se na maksimalni period otplate. Kalkulator je informativnog karaktera.
* Nakon isteka 5 godina, prelazi se na varijabilnu kamatnu stopu


