Četvorosoban stan na prodaju, BELGRADE WATERFRONT - BW RIVIERA, 1.134.888€, 173m²






































1.134.888 €
6.560 € / m2
- Centralno grejanje
- Prostorije: terasa
- Oglas oglašava agencija pod reg. brojem 109
- 1 parking mesto
- 1 lift
Opis oglasa
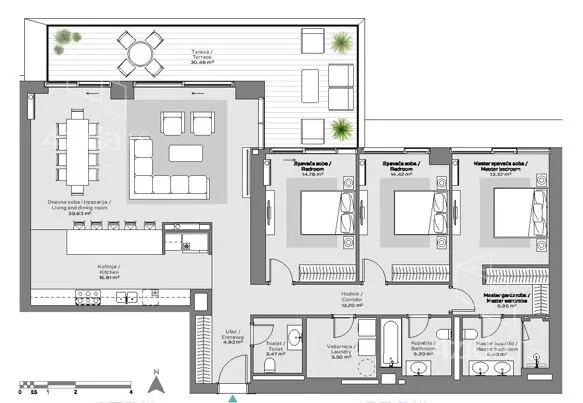
BW Riviera - stambeno-poslovni objekat na obali reke, na jedinstvenoj poziciji i mikrolokaciji. Zgrada je projektovana i dizajnirana da svojim izgledom, inovanitvnim i savremenim resenjima, velikim staklenim povrsinama i nesvakidasnjim izgledom terasa pruza najvisi osecaj slobode, udobnosti i komfora. Fasadni stakleni otvori od zida do zida u dnevnim prostorima, podno grejanje u kupatilima, premium nivo opreme koja se ugradjuje u svaku stambenu jedinicu krase ovaj objekat i cine ga neuporedivim i prvoklasnim. BW Riviera je sinonim za kvalitet, luksuz, izgled i savrsenu lokaciju. Stanarima ovog ekskluzivnog zdanja na raspolaganju ce biti raskosni spa centar(bazen, teretana, wellness, juice bar, etc.), povezan pasarelom(topla veza na prvom spratu, pozicioniran na ozelenjenom platou. Dodatne prednosti su, takodje, lobi sa recepcijom, fto 24/7, prostor za decija kolica, stanica za kucne ljubimce, uredjeni vrt za stanare sa fontanom i decije igraliste. U neposrednoj blizini nalazi se Promenada, BW Kula, TC Galerija, park Beograd i mnostvo raznovrsnih sadrzaja za sve generacije. U ponudi je luksuzan, atraktivan stan, na drugoj etazi, sa tri spavace sobe, raskosnim dnevnim boravkom i velikom terasom od koje zastaje dah. Doplata za garazno mesto. Skladisna prostorija se dobija uz stan. U zgradi BW Riviera raspolozivi su i ostali stanovi, razlicitih struktura, kvadratura i orijentacije. Kontaktirajte nas za detaljne informacije i prezentaciju.
*Sačuvaj oglas uz belešku i primaj obaveštenja o njihovom pojeftinjenju ili pojavljivanju sličnih
Prikaz stana na mapi
Parkovi u blizini
- Savski park5 min
- Park Lepi izgled11 min
- Park Bristol13 min

Obeležja kulture u blizini
- Spomenik caru Dušanu Silnom6 min
- Zgrada Železničke stanice7 min
- Krst sa Male pijace7 min

Škole/Fakulteti/Vrtići u blizini
- Osnovna škola (Osnovna škola Radojka Lakić)6 min
- Srednja škola (Škola za brodarstvo, brodogradnju i hidrogradnju)4 min
- Vrtić (Dečiji vrtić Futurino)4 min
- Fakultet (Akademija Dositej)6 min

- Bolnica (Opšta bolnica Euromedik)5 min
- Klinika (Poliklinika Rea Medika)6 min
- Teretana (Ashtanga Yoga Beograd)5 min
- Prodavnica (Shop&Go)2 min
- Restoran (Kaldi Gastro Bar)1 min
- Kafana (Kafana Kod Glumca)10 min
- Taksi stajalište (Taxi stanica)6 min
- Autobuska stanica (Palata Pravde 1)3 min
- Tramvajska stanica (Ekonomski Fakultet)11 min
- Trolejbuska stanica (Višegradska)10 min
- Banka (Banca Intesa)3 min
- Pošta (Pošta Beograd 115)6 min
Kontakt oglašivača
Krediti OTP banke
Saznaj više
Prikazana rata odnosi se na maksimalni period otplate. Kalkulator je informativnog karaktera.
* Nakon isteka 5 godina, prelazi se na varijabilnu kamatnu stopu


