Trosoban stan na prodaju, Jurija Gagarina, 299.000€, 64m²




































299.000 €
4.672 € / m2
- Centralno grejanje
- Novo
- Prostorije: kupatilo, terasa
- Opremljenost: Namešteno - interfon
- Oglas oglašava agencija pod reg. brojem 298
- 1 lift
- 1 telefonska linija
Opis oglasa
USELJIV
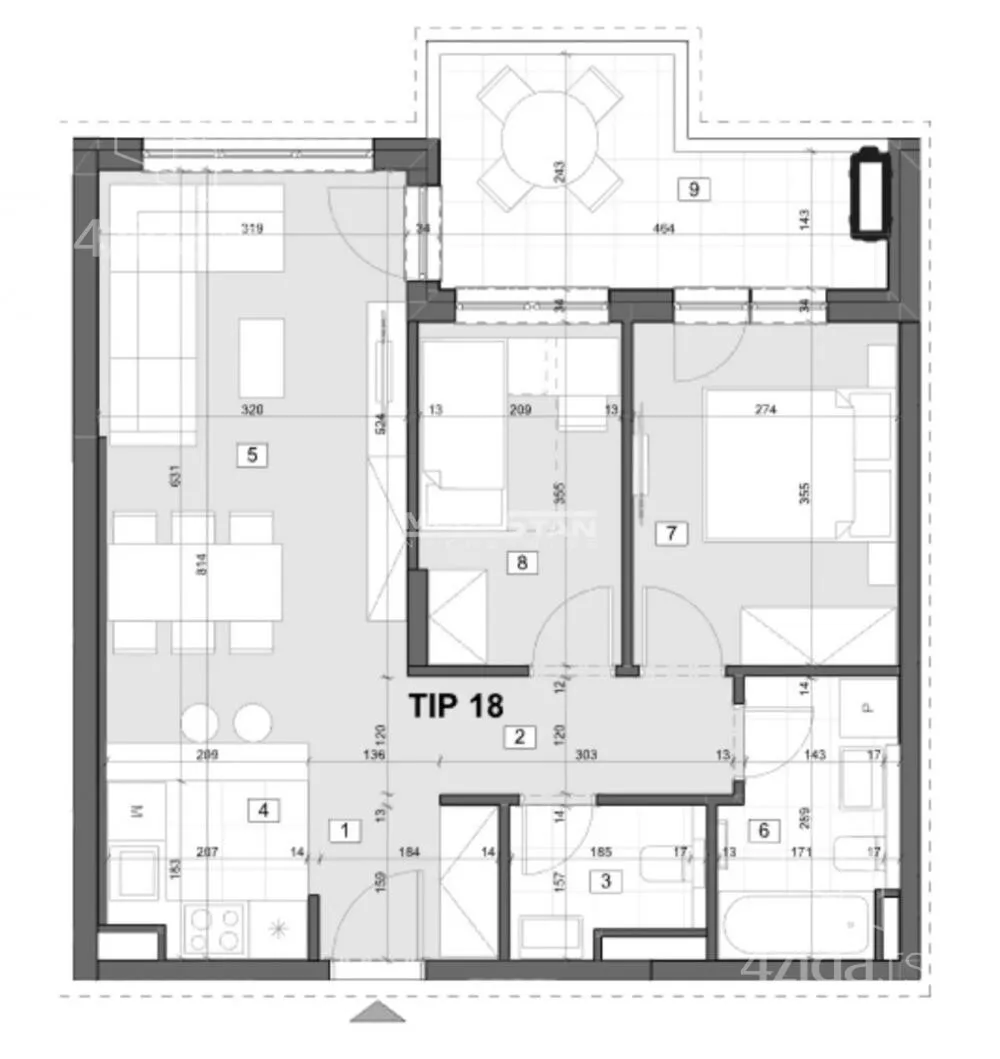
Na prodaju moderan, svetao i funkcionalan trosoban stan površine 64,01 m², smešten u jednoj od najtraženijih lokacija Novog Beograda – Jurija Gagarina, kompleks Lastavice (Belville / Delta City zona).
Stan se nalazi u novijoj zgradi, kompletno je opremljen i prodaje se potpuno namešten – bez ikakvih dodatnih ulaganja. Odlikuje ga čist, moderan dizajn i ugodna atmosfera, što ga čini idealnim za svakodnevni život.
RASPORED:
Dnevni boravak s kuhinjom i trpezarijom (open space) 2 spavaće sobe Kupatilo + dodatni WC Terasa s otvorenim pogledom prema Belville naselju i Delta City-u
PREDNOSTI:
Odlična orijentacija i puno prirodnog svetla Korišćen svega nekoliko meseci – kao nov Prodaje se isključivo zbog kupovine većeg stana u istoj zgradi Funkcionalan raspored i maksimalno iskorišćen prostor
OPREMA:
Moderna kuhinja s ugradnim aparatima Klima uređaji Ugradni ormari Kvalitetna keramika i sanitarije
LOKACIJA:
Stan se nalazi u neposrednoj blizini Delta City-a, s kompletnom infrastrukturom na dohvat ruke – trgovine, restorani, škole, vrtići i javni prevoz.
Odlična povezanost sa svim delovima grada.
Bez ulaganja – odmah useljiv. Idealno za život ili investiciju.
Agencijska provizija za kupca 2%.
Broj agencije u Registru posrednika 298. Mapa je informativnog karaktera, ne prikazuje tačnu lokaciju nekretnine.
*Sačuvaj oglas uz belešku i primaj obaveštenja o njihovom pojeftinjenju ili pojavljivanju sličnih
Prikaz stana na mapi
Parkovi u blizini
- Dečje igralište11 min
- Park Blok 7024 min
- Park Republike Argentine39 min

Obeležja kulture u blizini
- Hangar Starog aerodroma na Novom Beogradu8 min
- Stara osnovna škola9 min
- Česma10 min

Škole/Fakulteti/Vrtići u blizini
- Osnovna škola (Osnovna škola Mladost)6 min
- Srednja škola (Ruska osnovna i srednja škola)4 min
- Vrtić (Predškolska ustanova Meda 2)12 min
- Fakultet (Visoka škola strukovnih studija za informacione tehnologije ITS)6 min

- Bolnica (Puls kardiološki centar)11 min
- Klinika (Poliklinika Solar Medical Center)10 min
- Teretana (Fitness studio Elit)11 min
- Prodavnica (Shop&Go)4 min
- Restoran (Restoran Burrito Madre)1 min
- Kafana (Green Mill Pub)7 min
- Taksi stajalište (Taxi stanica)1 min
- Autobuska stanica (Naselje Belvil)3 min
- Tramvajska stanica (Blok 23)27 min
- Banka (NLB Komercijalna banka)2 min
- Pošta (Pošta Beograd 132)7 min
Kontakt oglašivača
Krediti OTP banke
Saznaj više
Prikazana rata odnosi se na maksimalni period otplate. Kalkulator je informativnog karaktera.
* Nakon isteka 5 godina, prelazi se na varijabilnu kamatnu stopu


