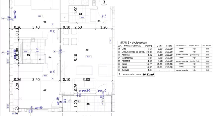
Dvoiposoban stan na prodaju, Mokroluška 15v, 105.400€, 56m²

















105.400 €
1.882 € / m2
- Stan u zgradi
- Etažno grejanje
- U izgradnji
- Prostorije: kupatilo, toalet, terasa
- Opremljenost: Prazno - internet
- Nije uknjiženo
- Kupovina direktno od investitora
- Parking u dvorištu zgrade
- 1 lift
- Godina izgradnje: 2026.
- Zgrada poseduje: lođa
- Tip interneta: optički
- Kablovska
- 1 telefonska linija
- Autobuske linije: 306, 305, 307, 304, 302, 311
Opis oglasa
Prodaja stana u novogradnji , stan odlicno isprojektavan , zgrada poseduje gradjevinsku dozvolu . Mogucnost kupovine na kredit , moguc povracaj PDV-a , ne placa se porez na prenos apsolutnih prava . Cena 1700+PDV .Planirano useljenje do kraja oktobra 2026 godine. Minimalna uplata za prilikom rezervacije iznosi 30% od ukupne cene. Obavezna overa ugovora kod notara prilikom rezervacije .
*Sačuvaj oglas uz belešku i primaj obaveštenja o njihovom pojeftinjenju ili pojavljivanju sličnih
Prikaz stana na mapi
Obeležja kulture u blizini
- Pašina česma12 min
- Rodna kuća vojvode Stepe Stepanovića15 min
- Stara mehana u Kumodražu16 min

Škole/Fakulteti/Vrtići u blizini
- Osnovna škola (Osnovna škola Aleksa Šantić)15 min
- Srednja škola (Sedma beogradska gimnazija)14 min
- Vrtić (Dečiji vrtić Cvetić)15 min
- Fakultet (Visoka građevinsko-geodetska škola Beograd)14 min

- Bolnica (Specijalna bolnica za cerebralnu paralizu i razvojnu neurologiju)17 min
- Klinika (Poliklinika Equilibrium)18 min
- Teretana (Body building i fitness klub Ahilej)11 min
- Prodavnica (Shop&Go)3 min
- Restoran (Walter sarajevski ćevap)18 min
- Autobuska stanica (Filipa Kljajića)2 min
- Banka (OTP banka)4 min
- Pošta (Pošta Kaluđerica)12 min
Kontakt oglašivača
Krediti OTP banke
Saznaj više
Prikazana rata odnosi se na maksimalni period otplate. Kalkulator je informativnog karaktera.
* Nakon isteka 5 godina, prelazi se na varijabilnu kamatnu stopu
