Trosoban stan na prodaju, Mirijevo, 154.740€, 77m²








154.740 €
2.010 € / m2
- Stan u zgradi
- Novo
- Prostorije: terasa
- Opremljenost: Prazno - internet, interfon, klima, kanalizacija
- Oglas oglašava agencija pod reg. brojem 1667
- 1 lift
- Kanalizacija
- Godina izgradnje: 2025.
- Kablovska
- 1 telefonska linija
Opis oglasa
ID 648
Kontakt: Za više informacija ili dogovor oko razgledanja, pozovite 069... (prikaži broj telefona) .
Bez agencijske provizije – direktna cena od investitora.
Pravni nadzor – izrada i overa kupoprodajnog ugovora obezbeđena.
Na prodaju najbolja nekretnina po odnosu cene, kvadrature i kvaliteta. Kompleks zgrada udaljen 20 minuta autom od centra Beograda. Akcija je u toku, cena direktno od investitora bez provizije.
Stan je moguće kupiti na kredit.
Trosoban stan na 4 spratu objekta u izgradnji, daleko od gradske buke.
Useljenje je planirano april 2026. god.
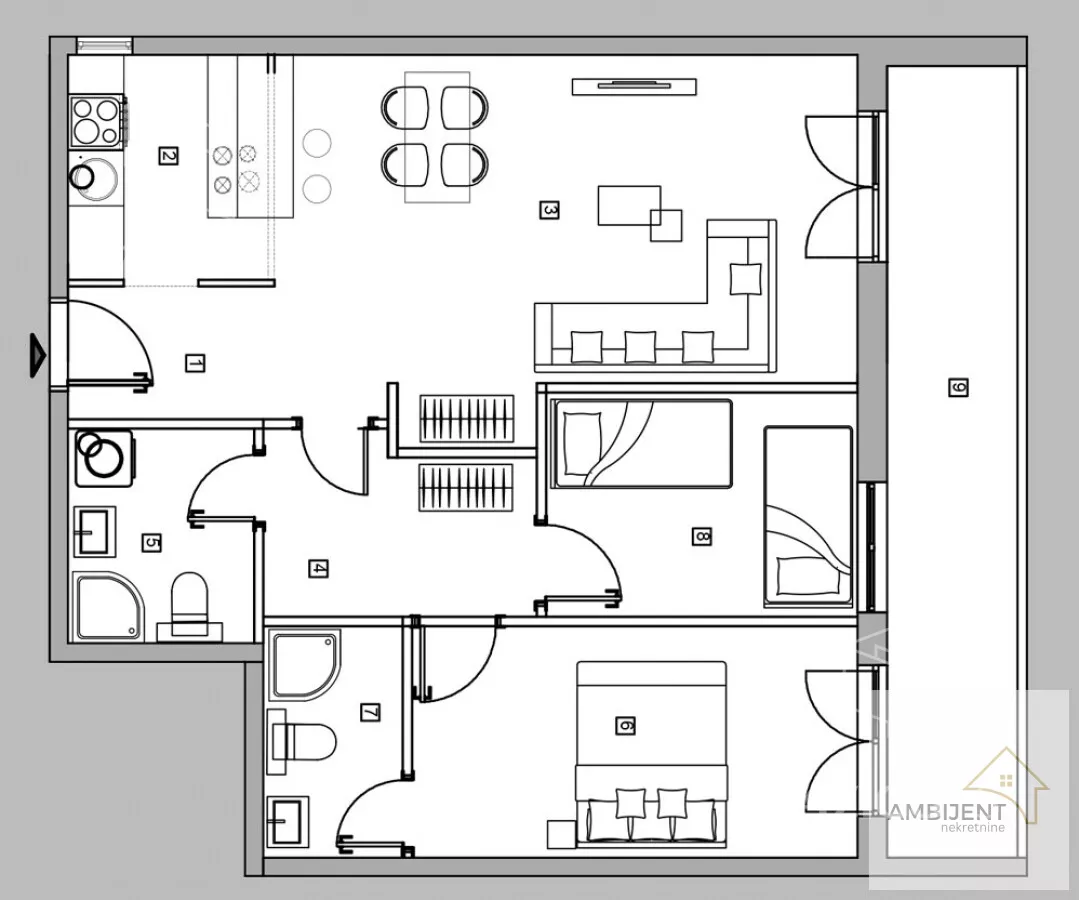
Sastoji se od dva hodnika, dnevnog boravka i trpezarije sa kuhinjom, dve spavaće sobe, 2 mokra čvora i terase.
Stan poseduje sigurnosna ulazna vrata, šestokomorne PVC prozore sa roletnama, troslojni tarket parket, a ugradni Geberit sistemi su sastavni deo svake od ovih modernih stambenih jedinica.
Postoji mogućnost kupovine spoljnog parking mesta po ceni od 6000 eur sa PDVom.
Cena je bez PDV-a – pravo na povraćaj PDV-a imaju kupci prvog stana.
Broj u registru posrednika: 1667.
*Sačuvaj oglas uz belešku i primaj obaveštenja o njihovom pojeftinjenju ili pojavljivanju sličnih
Prikaz stana na mapi
Parkovi u blizini
- Zvezdarska šuma36 min
- Park Slavujev potok37 min
- Park Urbani džep50 min

Obeležja kulture u blizini
- Pašina česma9 min
- Trećepozivačka česma10 min
- Tripod14 min

Škole/Fakulteti/Vrtići u blizini
- Osnovna škola (Osnovna škola Despot Stefan Lazarević)5 min
- Srednja škola (Sedma beogradska gimnazija)6 min
- Vrtić (Dečiji vrtić Sunce)3 min
- Fakultet (Visoka građevinsko-geodetska škola Beograd)9 min

- Bolnica (Gradski zavod za plućne bolesti i tuberkulozu)11 min
- Klinika (Poliklinika i laboratorija LaboMedica)12 min
- Teretana (Body building i fitness klub Ahilej)3 min
- Prodavnica (Maxi Supermarket)1 min
- Restoran (Restoran Obećana zemlja)1 min
- Kafana (Pivnica Krigla)10 min
- Taksi stajalište (Taxi stanica)5 min
- Autobuska stanica (Stojčino Brdo)manje od 1 min
- Tramvajska stanica (Ustanička)21 min
- Trolejbuska stanica (Marčanska)30 min
- Banka (OTP banka)4 min
- Pošta (Pošta Beograd 74)4 min
Kontakt oglašivača
Krediti OTP banke
Saznaj više
Prikazana rata odnosi se na maksimalni period otplate. Kalkulator je informativnog karaktera.
* Nakon isteka 5 godina, prelazi se na varijabilnu kamatnu stopu


