Četvorosoban stan na prodaju, Tošin bunar, 393.300€, 114m²


393.300 €
3.450 € / m2
- Stan u zgradi
- Centralno grejanje
- Novo
- Prostorije: terasa
- Opremljenost: Prazno - interfon, klima
- Oglas oglašava agencija pod reg. brojem 1525
- 1 garažno mesto
- 1 parking mesto
- 1 lift
- Zgrada poseduje: video nadzor
- 1 telefonska linija
Opis oglasa
Novi Beograd - Tošin bunar
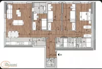
4.0, 108m2, mereno 114m2 (terasa), 9/20, CG, lift, telefon, interfon, parking, garaža, video nadzor
Odlično pozicioniran četvorosoban stan u stambeno-poslovnom kompleksu, Residence & office. Život po meri savremene porodice, najsavremenija materijalizacija, inovativna rešenja i moderna tehnologija koja kvalitet života i rada podiže na viši nivo. Stambeno-poslovni kompleks nalazi se na idealnoj lokaciji gde se svi sadržaji nalaze u sklopu kondominijuma napravljeni da pomognu savremenoj porodici u organizaciji dnevnih obaveza i uštedi vremena.
Stanarima će na raspolaganju biti različiti objekti ugostiteljske i komercijalne delatnosti, kao i vrtić i igralište za najmlađe. Park zatvorenog tipa – atrijum, zamišljen je kao prostor za razonodu dece i odraslih, ispunjen zelenilom i različitim sadržajima koji će upotpuniti Vaš boravak na otvorenom, poput pametnih klupa, stolova, dečijih igrališta, terena za rekreativni sport.
Za izgradnju vašeg doma iz snova ili idealnog poslovnog prostora korišćeni su najkvalitetniji i najsavremeniji materijali, oprema i tehnička rešenja a sve u cilju pružanja maksimalnog komfora budućim korisnicima kompleksa. asadna stolarija je aluminijumska stolarija renomiranih svetskih proizvođača, ulazna vrata su ispunjena HOMANIT izolacionim pločama, obložena furnirom američkog oraha, sobna vrata su od medijapana bele boje, parket hrastov, višeslojni, sa prirodnom teksturom hrasta, keramika granitna I klase, tuševi marke "Walk in"..
Stan identične strukture i kvadrature imamo i na 18., 19. i 20. spratu.
Garaža se prostire na dva podzemna nivoa i ima dva zasebna ulaza odnosno izlaza. U okviru garaže nalaze se punjači za hibridne/električne automobile. Ceo kompleks ima fizičko-tehničko obezbeđenje, kontrolu pristupa kao i video nadzor. Komunikacije u okviru objekta, rešene su električnim liftovima renomiranih proizvođača.
Cena garažnog mesta se naknadno ugovara sa investitorom.
Cena stana je bez uračunatog PDV-a. Useljenje je krajem 2026. godine.
Kupac ne plaća agencijsku proviziju.
Za više informacija agent: Dragutin 065... (prikaži broj telefona)
*Sačuvaj oglas uz belešku i primaj obaveštenja o njihovom pojeftinjenju ili pojavljivanju sličnih
Prikaz stana na mapi
Parkovi u blizini
- Dečje igralište25 min
- Park Kalvarija35 min
- Park Jelovac35 min

Obeležja kulture u blizini
- Hangar Starog aerodroma na Novom Beogradu5 min
- Stara osnovna škola8 min
- Spomenik Žambilu Zambajevu12 min

Škole/Fakulteti/Vrtići u blizini
- Osnovna škola (Savremena osnovna škola)4 min
- Srednja škola (Tehnička škola Novi Beograd)6 min
- Vrtić (Dečiji vrtić Mladenac)13 min
- Fakultet (Univerzitet u Beogradu Fakultet dramskih umetnosti)8 min

- Bolnica (Opšta bolnica Avala)4 min
- Klinika (Poliklinika Dr Sci. Hadžagić)6 min
- Teretana (Fitness centar Maximus Fitness)12 min
- Prodavnica (Market Venera)4 min
- Restoran (Restoran Recept)4 min
- Kafana (Pub Senat)16 min
- Taksi stajalište (NBA Taxi)7 min
- Autobuska stanica (Železnička Stanica Tošin Bunar)3 min
- Tramvajska stanica (Blok 23)41 min
- Banka (ProCredit Bank)5 min
- Pošta (Pošta Beograd 99)5 min
Kontakt oglašivača
Krediti OTP banke
Saznaj više
Prikazana rata odnosi se na maksimalni period otplate. Kalkulator je informativnog karaktera.
* Nakon isteka 5 godina, prelazi se na varijabilnu kamatnu stopu






















