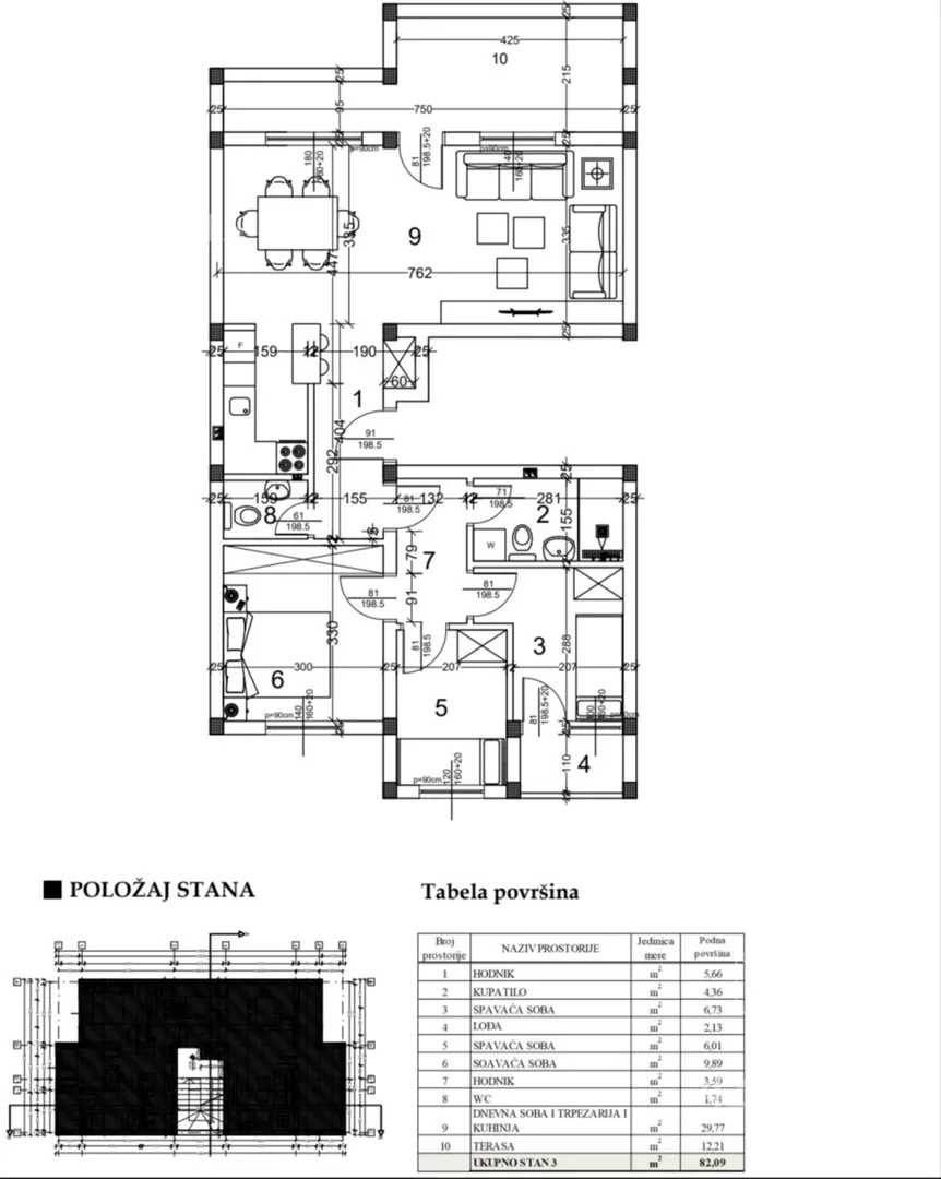
Četvorosoban stan na prodaju, Veternička Rampa, 160.650€, 82m²


160.650 €
1.959 € / m2
- Stan u zgradi
- Podno grejanje
- U izgradnji
- Prostorije: kupatilo, toalet, terase (2)
- Uknjiženo
- Oglas oglašava agencija pod reg. brojem 1838
Opis oglasa
U ponudi imamo četvorosoban stan, Veternička rampa. Kvalitetna novogradnja – podno grejanje, tarkett, španska keramika, PVC stolarija, sigurnosna ulazna vrata. Parking mesto uključeno u cenu. Dodatno parking mesto je 4000 eura.
Mogućnost kupovine stana na kredit. Kupci prve nekretnine imaju pravo na povrat PDV-a.
Rok završetka: JUN 2026.god.
Broj u reg. posrednika 1838
*Sačuvaj oglas uz belešku i primaj obaveštenja o njihovom pojeftinjenju ili pojavljivanju sličnih
Prikaz stana na mapi
Parkovi u blizini
- Park Bistrica35 min

Obeležja kulture u blizini
- Jodna Banja13 min
- Dvorac Eđšeg14 min
- Matičarsko zdanje15 min

Škole/Fakulteti/Vrtići u blizini
- Osnovna škola (Osnovna škola Mihajlo Pupin)6 min
- Srednja škola (Privatna medicinska škola Dositej Obradović)7 min
- Vrtić (Dečiji vrtić Zlatno sunce)4 min
- Fakultet (Protestantski teološki fakultet)10 min

- Bolnica (Specijalna bolnica za hemodijalizu Fresenius Medical Care FMC)9 min
- Klinika (Poliklinika Consilium)9 min
- Teretana (Fitness studio Top Form)6 min
- Prodavnica (Mikromarket)3 min
- Restoran (Restoran Na kraj sela)23 min
- Kafana (Pivoteka 77)38 min
- Taksi stajalište (Taxi prevoz Novi Sad)37 min
- Autobuska stanica (Veternik - Fešter)13 min
- Banka (Erste Bank Ekspres ekspozitura)4 min
- Pošta (Pošta Veternik 21203)5 min
Kontakt oglašivača
Krediti OTP banke
Saznaj više
Prikazana rata odnosi se na maksimalni period otplate. Kalkulator je informativnog karaktera.
* Nakon isteka 5 godina, prelazi se na varijabilnu kamatnu stopu


