Poslovni prostor za izdavanje, Bulevar Maršala Tolbuhina, 9.000€, 653m²








































9.000 €
- Prizemlje od ukupno 2 sprata
- Luksuzno
- Opremljenost: Prazno - internet, interfon, kanalizacija
- Oglas oglašava agencija pod reg. brojem 167
- 1 garažno mesto
- 1 lift
- Kanalizacija
- Godina izgradnje: 1970.
Opis oglasa
Novi Beograd, Stari Merkator - Bulevar Maršala Tolbuhina
poslovni prostor, 653m2, PR+I/2, toplotne pumpe, lift, telefon, interfon, garaže
Ozdaje se funkcionalan i prostran poslovno-kancelarijski prostor.
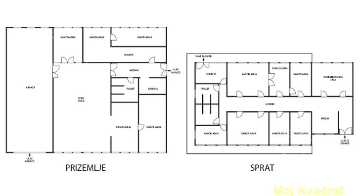
Sastoji se od prizemlja i prvog sprata.
Prizemlje(321m2): dve velike prostorije (trenutno se koriste kao arhiva), čajna kuhinja, tuš kabine i dva toaleta. Visina plafona u prizemlju iznosi 2,20 metara.
Prvi sprat(332m2): četiri prostrane kancelarije, tri manje kancelarije, kuhinja i dva mokra čvora. Visina plafona iznosi 2,80 metara.
Prostor poseduje pet garažnih mesta.
Agencijska provizija po Opštim uslovima poslovanja.
Agent Svjetlana Janjoš: 069... (prikaži broj telefona) (licenca br. 4587)
*Sačuvaj oglas uz belešku i primaj obaveštenja o njihovom pojeftinjenju ili pojavljivanju sličnih
Prikaz poslovnog prostora na mapi
Parkovi u blizini
- Gradski park18 min
- Park Kalvarija27 min
- Park Jelovac29 min

Obeležja kulture u blizini
- Spomenik Žambilu Zambajevu5 min
- Spomenik palim u narodnoj revoluciji 1941/456 min
- Kuća Dimitrija Davidovića7 min

Škole/Fakulteti/Vrtići u blizini
- Osnovna škola (Osnovna škola Nadežda Petrović)9 min
- Srednja škola (Grafička škola)4 min
- Vrtić (Dečiji vrtić Izvorčić)6 min
- Fakultet (Megatrend Univerzitet Pravni fakultet)4 min

- Bolnica (Opšta bolnica Euromedik)5 min
- Klinika (Poliklinika Beograd)8 min
- Teretana (Fitness centar Imperial Gym)6 min
- Prodavnica (Maxi Supermarket)2 min
- Restoran (Restoran Burrito Madre)3 min
- Kafana (Maders bistro)10 min
- Taksi stajalište (Taxi stanica)manje od 1 min
- Autobuska stanica (Bulevar Maršala Tolbuhina)4 min
- Tramvajska stanica (Blok 21)36 min
- Banka (Adriatic bank)6 min
- Pošta (Pošta Beograd 97)4 min
Kontakt oglašivača
Krediti OTP banke
Period otplate
13 mesecimesečno
Period otplate 13 - 71 mesec
Saznaj više




















