Lokal na prodaju, Vojvođanska, 1.312.000€, 328m²






1.312.000 €
4.000 € / m2
- Centralno grejanje
- U izgradnji
- Oglas oglašava agencija pod reg. brojem 52
Opis oglasa
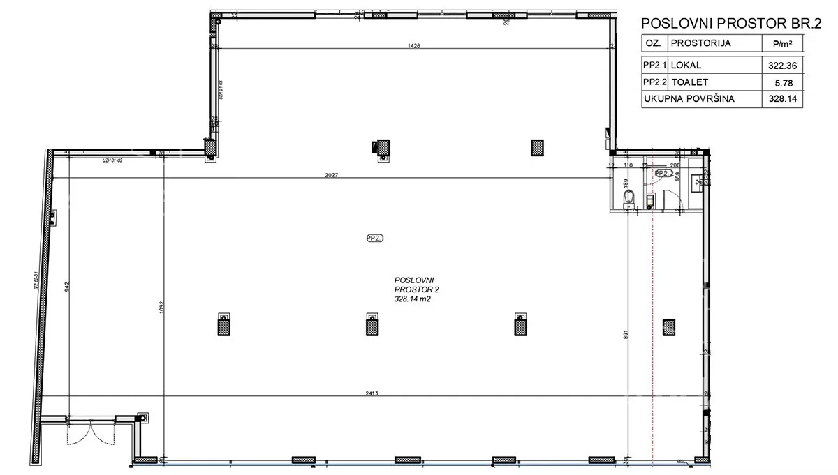
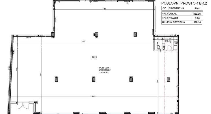
Lokal ima 328m², nalazi se do Vojvođanske ulice. Visine je od 6 metara i ima staklenu fasadu (izlog) dužinom i visinom celog lokala.
Postoji mogućnost postavljanja galerije u lokal i dobijanja prostora od oko 600m2.
Vojvođanska ulica spaja centar Novog Beograda i poslovni i finansijski centar sa auto putem Miloš veliki i predstavlja novu žilu kucavicu Beograda uopšte.
Završetak gradnje i useljenje - decembar 2026. godine do kada je moguće vršiti i radove, adaptaciju i spremanje lokala tokom izgradnje objekta.
Direktna prodaja, bez provizije za kupca!
*Sačuvaj oglas uz belešku i primaj obaveštenja o njihovom pojeftinjenju ili pojavljivanju sličnih
Prikaz poslovnog prostora na mapi
Parkovi u blizini
- Park Republike Argentine7 min
- Park Blok 7025 min
- Dečje igralište35 min

Obeležja kulture u blizini
- Hangar Starog aerodroma na Novom Beogradu6 min
- Česma8 min
- Stara osnovna škola5 min

Škole/Fakulteti/Vrtići u blizini
- Osnovna škola (Osnovna škola Milan Rakić)5 min
- Srednja škola (Srednja škola Kosta Cukić)7 min
- Vrtić (Dečiji vrtić Ljubičica)5 min
- Fakultet (Fakultet za pravo, bezbednost i menadžment Konstantin Veliki)9 min

- Bolnica (Opšta bolnica Avala)7 min
- Klinika (Poliklinika As Medicus Biorezonanca)5 min
- Teretana (Arena No1 Fitness centar)14 min
- Prodavnica (Market Batos)3 min
- Restoran (Kafana Stara Bežanija)6 min
- Kafana (Kafana Balkan Ekspres)10 min
- Taksi stajalište (Taxi stanica)15 min
- Autobuska stanica (Dušana Vukasovića)2 min
- Banka (Poštanska štedionica)6 min
- Pošta (Pošta Beograd 94)7 min
Kontakt oglašivača
Krediti OTP banke
Saznaj više
Prikazana rata odnosi se na maksimalni period otplate. Kalkulator je informativnog karaktera.
* Nakon isteka 5 godina, prelazi se na varijabilnu kamatnu stopu

