Četvorosoban stan na prodaju, Lješka, 295.000€, 106m²
OBIĐI 3D TURU





















295.000 €
2.783 € / m2
- Etažno grejanje
- Uobičajeno stanje
- Prostorije: kupatilo
- Opremljenost: Namešteno - klima
- Uknjiženo
- Oglas oglašava agencija pod reg. brojem 339
- 1 parking mesto
- 1 telefonska linija
Opis oglasa
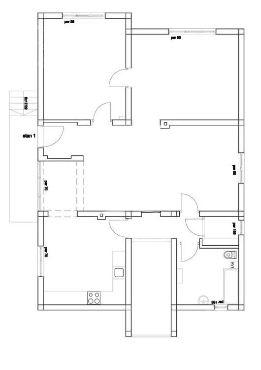
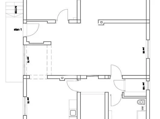
Prodaje se stan u kući. Kuća se nalazi na ravnom i lepo uređenom placu, sa lakim pristupom svim bitnim sadržajima javnom prevozu, prodavnicama, školama, parkovima, vrtićima. Poseduje zaseban ulaz nezavisan u odnosu na ostale stambene jedinice. U blizini tržnog centra Ada mol, na mirnoj lokaciji. Odličan raspored, sastoji se iz velike dnevne sobe, odvojene kuhinje sa trpezarijom, tri spavaće sobe, kupatila i toaleta, terase. Sistem grejanja na gas. Na kući je nova fasada, urađena je termoizolacija, stolarija je pvc, ima klimu. Ovaj stan u kući predstavlja idealan izbor za one koji traže miran porodični dom sa svim pogodnostima života na Banovom brdu.
Ima mogućnost parking mesta u dvorištu. Uknjižena, useljiva.
Agencijska provizija 2 %
Agent: Biljana Jovanović, br. licence:5659
“Art nekretnine“ d.o.o. Beograd Reg. br.339
011... (prikaži broj telefona)
BJ08
.
*Sačuvaj oglas uz belešku i primaj obaveštenja o njihovom pojeftinjenju ili pojavljivanju sličnih
Prikaz stana na mapi
Parkovi u blizini
- Park Banovo Brdo8 min
- Dečje igralište14 min
- Dečje igralište18 min

Obeležja kulture u blizini
- Spomenik srpskim ratnicima8 min
- Skulptura Žetelica8 min
- Spomenik Arčibaldu Rajsu8 min

Škole/Fakulteti/Vrtići u blizini
- Osnovna škola (Osnovna škola Josif Pančić)5 min
- Srednja škola (Hemijsko prehrambena tehnološka škola)3 min
- Vrtić (Dečiji vrtić Đurđevak)8 min
- Fakultet (Visoka sportska i zdravstvena škola)4 min

- Bolnica (Bolnica za plastičnu i rekonstruktivnu hirurgiju Mens Sana)8 min
- Klinika (Bel Medic Poliklinika)6 min
- Teretana (Hill Gym Studio)6 min
- Prodavnica (Shop&Go)2 min
- Restoran (Restoran D Mol)2 min
- Kafana (Naše kafanče)2 min
- Taksi stajalište (Taxi stanica)7 min
- Autobuska stanica (Svetolika Lazarevića Laze)5 min
- Tramvajska stanica (Škola Josif Pančić)5 min
- Trolejbuska stanica (Ortopedski Zavod)48 min
- Banka (ProCredit Bank)6 min
- Pošta (Pošta Beograd 8)3 min
Kontakt oglašivača
Krediti OTP banke
Saznaj više
Prikazana rata odnosi se na maksimalni period otplate. Kalkulator je informativnog karaktera.
* Nakon isteka 5 godina, prelazi se na varijabilnu kamatnu stopu





















