Petosoban stan na prodaju, Palmotićeva, 710.000€, 158m²
















































710.000 €
4.494 € / m2
- Salonac
- Prostorije: terasa
- Uknjiženo
- Oglas oglašava agencija pod reg. brojem 1984
- Zgrada poseduje: lođa
Opis oglasa
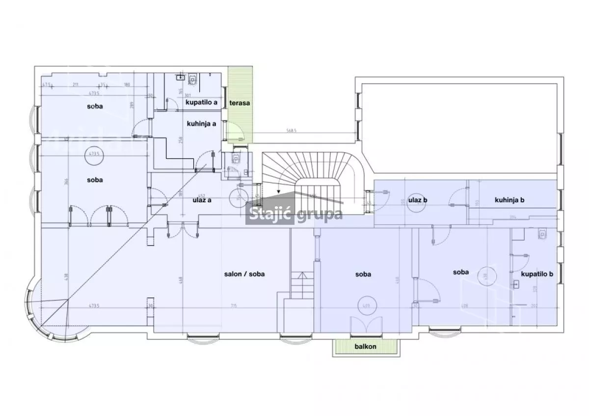
Stan se prostire na 158 m² i organizovan je na dva nivoa, sa ukupno pet prostorija, što pruža izuzetnu fleksibilnost u organizaciji prostora. Trenutno funkcioniše kao dve odvojene jedinice – stambeni i poslovni prostor – sa mogućnošću jednostavnog spajanja u jednu komfornu, reprezentativnu celinu.
Pre dve godine kompletno su renovirane instalacije, urađena su tri moderna kupatila i dve kuhinje, što ovu nekretninu čini spremnom za useljenje bez dodatnih ulaganja.
Zahvaljujući salonskoj visini plafona, velikim prozorima i autentičnim arhitektonskim detaljima, prostor odiše elegancijom i karakterom tipičnim za starogradnju u centru grada.
Idealan je kako za porodično stanovanje, tako i za kombinaciju stanovanja i poslovne delatnosti (ordinacija, kancelarije, advokatska kancelarija, predstavništvo firme), ali i kao investicija sa mogućnošću izdavanja dve zasebne jedinice.
Retka prilika na prestižnoj lokaciji.
Agencijska provizija 2%
*Sačuvaj oglas uz belešku i primaj obaveštenja o njihovom pojeftinjenju ili pojavljivanju sličnih
Prikaz stana na mapi
Parkovi u blizini
- Pionirski park6 min
- Tašmajdan7 min
- Park Andrićev venac8 min

Obeležja kulture u blizini
- Stara telefonska centrala1 min
- Spomen kuća Uroša Predića3 min
- Spomenik Zoranu Radmiloviću4 min

Škole/Fakulteti/Vrtići u blizini
- Osnovna škola (Osnovna škola Vuk Karadžić)8 min
- Srednja škola (Pravno poslovna škola)4 min
- Vrtić (Dečiji vrtić Skadarlija)4 min
- Fakultet (Sportska Akademija Beograd)1 min

- Bolnica (Belloko centar za oftalmologiju i estetiku)4 min
- Klinika (Ordinacija za plućne bolesti Plavec)3 min
- Teretana (Fitnes centar My place)2 min
- Prodavnica (Shop&Go)3 min
- Restoran (Restoran Mumbai)manje od 1 min
- Kafana (Irish pub Drunken Ducks)3 min
- Taksi stajalište (Taxi stanica)4 min
- Autobuska stanica (Pionirski Park)4 min
- Tramvajska stanica (Takovska)8 min
- Trolejbuska stanica (Glavna Pošta)2 min
- Banka (NLB Komercijalna banka)5 min
- Pošta (Pošta Beograd 4)4 min
Kontakt oglašivača
Krediti OTP banke
Saznaj više
Prikazana rata odnosi se na maksimalni period otplate. Kalkulator je informativnog karaktera.
* Nakon isteka 5 godina, prelazi se na varijabilnu kamatnu stopu


