Trosoban stan na prodaju, Dom Zdravlja, 231.500€, 128m²










231.500 €
1.809 € / m2
- Stan u zgradi
- Grejanje na toplotnu pumpu
- U izgradnji
- Prostorije: kupatilo, terasa
- Uknjiženo
- Oglas oglašava agencija pod reg. brojem 1106
- Parking u dvorištu zgrade, javni parking u zoni, javni parking van zone
- 1 lift
- Godina izgradnje: 2026.
- Zgrada poseduje: podrum
Opis oglasa
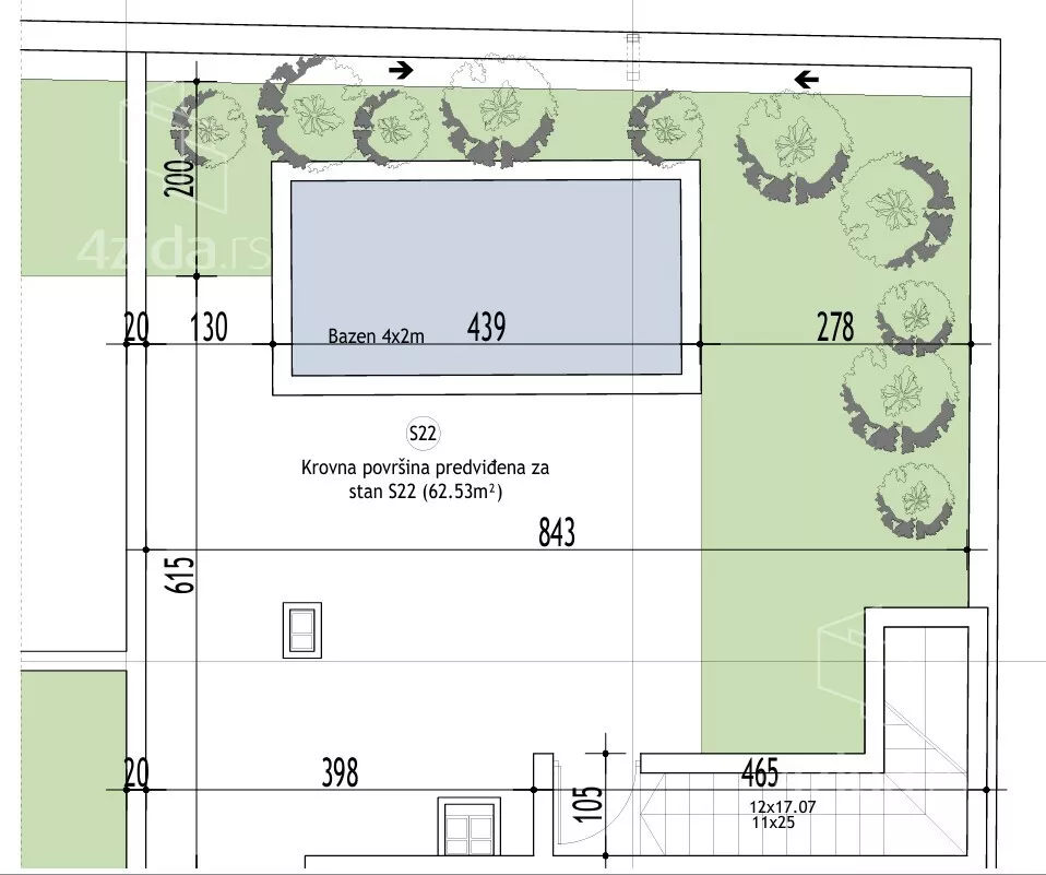
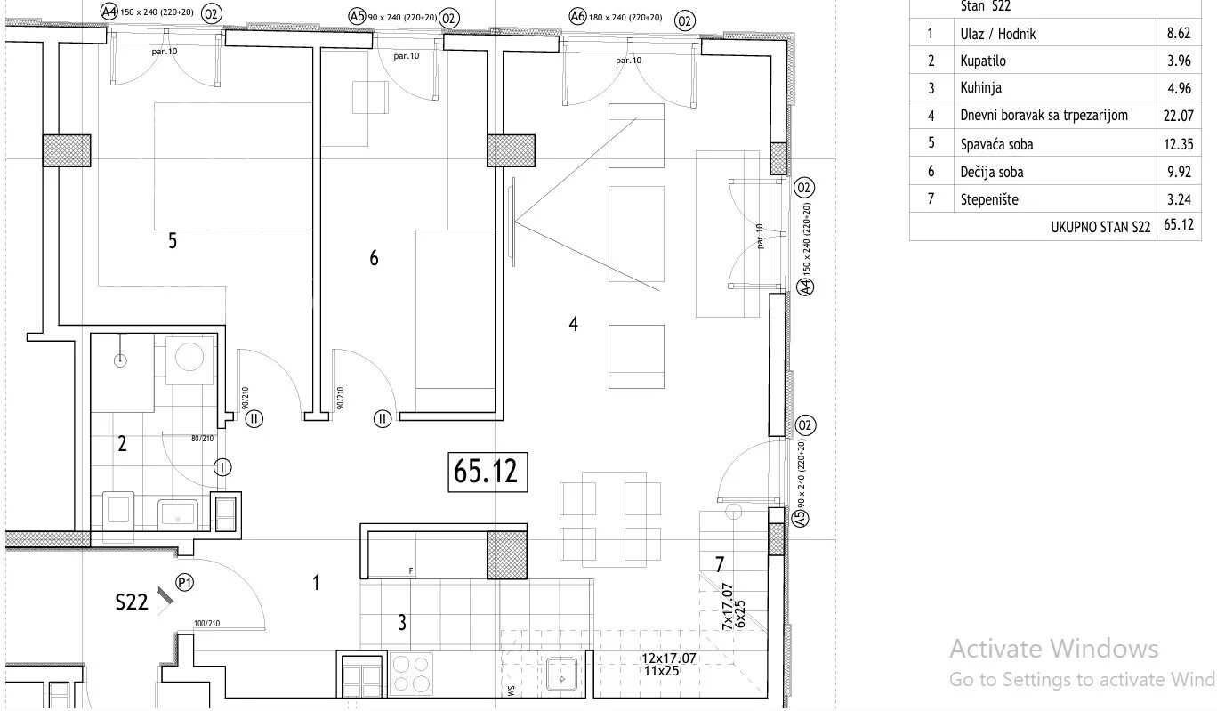
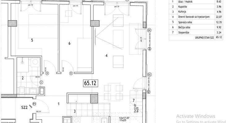
U prilici smo da vam ponudimo na prodaju odličan lux stan u novogradnji, u blizini Doma Zdravlja u Nišu. Po strukturi trosoban, projektovane kvadradure 128m2 (65,12m2 stan + 62,53m2 krovna terasa), nalazi se na V spratu zgrade sa liftom. Sastoji se iz ulaznog hodnika, kupatila, kuhinje, dnevne sobe sa trpezarijom, dve spavaće sobe, stepeništa za krovnu terasu i terase sa bazenom. Spoljna stolarija je aluminijumska, podovi su prektiveni tarketom, grejanje je na toplotne pumpe (fain coil).
Planirani rok završetka zgrade je 31.12.2026 godine
Postoji mogućnost kupovine parking mesta po ceni od 12.000 evra.
Mogućnost kupovine putem stambenog kredita uz učešće od 20%
Za više informacija pozovite na 060... (prikaži broj telefona)
*Sačuvaj oglas uz belešku i primaj obaveštenja o njihovom pojeftinjenju ili pojavljivanju sličnih
Prikaz stana na mapi
Parkovi u blizini
- Park složnih komšija7 min
- Park Čair12 min
- Park Svetog Save13 min

Obeležja kulture u blizini
- Spomenik oslobodiocima Niša5 min
- Zgrada Oficirskog doma5 min
- Čairska česma6 min

Škole/Fakulteti/Vrtići u blizini
- Osnovna škola (Osnovna škola Vožd Karađorđe)8 min
- Srednja škola (Gimnazija Bora Stanković)9 min
- Vrtić (Dečiji vrtić Cvetić)8 min
- Fakultet (Fakultet za pravne i poslovne studije Dr Lazar Vrkatić)3 min

- Bolnica (Urgentni centar Niš)5 min
- Klinika (Poliklinika Kardio Medika)5 min
- Teretana (Gym Town 2)6 min
- Prodavnica (Maxi Supermarket)3 min
- Restoran (Etno kafana Porta)4 min
- Kafana (Ministarstvo beer bar)10 min
- Taksi stajalište (Duga taksi)9 min
- Autobuska stanica (Trg Patrijarha Pavla)5 min
- Banka (Poštanska štedionica)8 min
- Pošta (Pošta Niš 7)4 min
Kontakt oglašivača
Krediti OTP banke
Saznaj više
Prikazana rata odnosi se na maksimalni period otplate. Kalkulator je informativnog karaktera.
* Nakon isteka 5 godina, prelazi se na varijabilnu kamatnu stopu


