Dvosoban stan na prodaju, Milana Rakića, 189.000€, 56m²



















































189.000 €
3.375 € / m2
- Stan u zgradi
- Grejanje na TA peć
- Uknjiženo
- Oglas oglašava agencija pod reg. brojem 224
- Zgrada poseduje: podrum
Opis oglasa
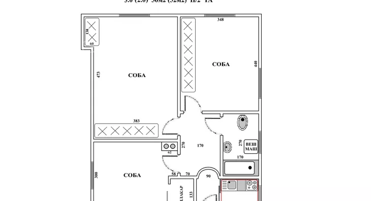
Lion, sam na spratu, trostran, mogućnost 2 spavaće sobe .. / ul. Milana Rakića, preko puta Šeste Gimnazije, nedaleko od Bulevara, u blizini Zvezdara Teatra, manja predratna zgrada sa 3 stana i dvorištem, uredan ulaz, svetao stan, funkcionalan, trostran, 2.0 sa mogućnošću adaptacije u trosoban, hrast parket, ta, 2 klime, spr. II/2, iznad kos krov i mogućnost dupleksa, sam na spratu, pripadajući podrum, pogled na dvorište i zelenilo, blizina prevoza, prodavnica, škola, vrtića, uknj. na 52m2 ..
.. video klip: https://youtu.be/Tnq-6L3pg08 ..
.. AGENCIJSKA PROVIZIJA 2% ..
*Sačuvaj oglas uz belešku i primaj obaveštenja o njihovom pojeftinjenju ili pojavljivanju sličnih
Prikaz stana na mapi
Parkovi u blizini
- Park Slavujev potok2 min
- Zvezdarska šuma15 min
- Park Urbani džep16 min

Obeležja kulture u blizini
- Vozarev krst8 min
- Spomenik Ćirilu i Metodiju8 min
- Trećepozivačka česma7 min

Škole/Fakulteti/Vrtići u blizini
- Osnovna škola (Osnovna škola Veljko Dugošević)3 min
- Srednja škola (Geodetska tehnička škola)4 min
- Vrtić (Dečiji vrtić Slavuj)6 min
- Fakultet (Visoka građevinsko-geodetska škola Beograd)2 min

- Bolnica (Gradski zavod za plućne bolesti i tuberkulozu)3 min
- Klinika (Poliklinika i laboratorija LaboMedica)7 min
- Teretana (Teretana Braća Ribać)5 min
- Prodavnica (Aman SOS market)3 min
- Restoran (Restoran Hajduk)1 min
- Kafana (Pivnica Paulaner)4 min
- Taksi stajalište (Taxi stanica)9 min
- Autobuska stanica (Batutova)4 min
- Tramvajska stanica (Pijaca Zvezdara)10 min
- Trolejbuska stanica (Gradska Bolnica)4 min
- Banka (OTP banka)4 min
- Pošta (Pošta Beograd 57)4 min
Kontakt oglašivača
Krediti OTP banke
Saznaj više
Prikazana rata odnosi se na maksimalni period otplate. Kalkulator je informativnog karaktera.
* Nakon isteka 5 godina, prelazi se na varijabilnu kamatnu stopu

