Četvorosoban stan na prodaju, Petrovaradin, 191.190€, 75m²


















191.190 €
2.549 € / m2
- Stan u zgradi
- U izgradnji
- Prostorije: terasa
- Oglas oglašava agencija pod reg. brojem 1808
- 1 parking mesto
Opis oglasa
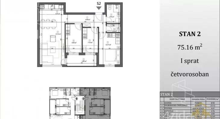
Predstavljamo vam prostran i funkcionalan četvorosoban stan u izgradnji, smešten u mirnom i porodičnom delu Petrovaradina, na lokaciji koja pruža idealan balans između tišine i odlične povezanosti sa gradom. U blizini se nalaze prodavnice, škole, vrtići i gradski prevoz, što ovu nekretninu čini idealnom za porodičan život. Stan je površine 75 m² i pažljivo je projektovan kako bi pružio maksimalnu iskorišćenost prostora i komfor. Centralni deo stana čini svetao dnevni boravak sa trpezarijom i kuhinjom u otvorenom konceptu, koji stvara prijatnu i funkcionalnu celinu za svakodnevne aktivnosti i porodična okupljanja. Iz dnevnog boravka se izlazi na terasu koja pruža dodatni prostor za odmor i uživanje.
Stan raspolaže sa tri spavaće sobe, koje nude dovoljno prostora za porodicu, radni kutak ili dečije sobe. Pored glavnog kupatila, stan poseduje i dodatni wc, kao i hodnik koji povezuje sve prostorije i doprinosi praktičnom rasporedu. Grejanje je rešeno putem toplotne pumpe sa podnim sistemom grejanja, što obezbeđuje ravnomernu temperaturu i energetsku efikasnost. Podovi su obloženi kvalitetnim pločicama koje prostoru daju moderan izgled i omogućavaju jednostavno održavanje. U cenu stana uključeno je i parking mesto, što dodatno doprinosi komforu i praktičnosti budućih vlasnika. Savremena gradnja i pažljivo osmišljen raspored čine ovaj stan odličnom prilikom za kupce koji žele nov i komforan dom u jednom od najtraženijih delova Petrovaradina.
Za više informacija kao i za razgledanje stana slobodno nas kontaktirajte.
Kontakt telefoni:
065... (prikaži broj telefona)
,
060... (prikaži broj telefona)
,
065... (prikaži broj telefona)
BAK Nekretnine
*Sačuvaj oglas uz belešku i primaj obaveštenja o njihovom pojeftinjenju ili pojavljivanju sličnih
Prikaz stana na mapi
Parkovi u blizini
- Limanski park17 min
- Kamenički park37 min
- Futoški park38 min

Obeležja kulture u blizini
- Kuća Jovana Jovanovića Zmaja5 min
- Kuća iz 1797. godine5 min
- Dvorac Marcibanji-Karačonji7 min

Škole/Fakulteti/Vrtići u blizini
- Osnovna škola (Privatna osnovna škola Svitac)5 min
- Srednja škola (Francusko-srpska gimnazija Petar I od Srbije)38 min
- Vrtić (Dečiji vrtić Plavi čuperak)4 min
- Fakultet (Educons Univerzitet)38 min

- Klinika (NK Poliklinika)10 min
- Teretana (Joga Yogaja Studio)5 min
- Prodavnica (Supermarket Univerexport)20 min
- Restoran (Restoran Mali Niš)19 min
- Kafana (Točionica Pab)19 min
- Taksi stajalište (Taxi Maxi Novosađani)23 min
- Autobuska stanica (Štrand - Okretnica)22 min
- Banka (Poštanska štedionica)5 min
- Pošta (Pošta Sremska Kamenica 21202)41 min
Kontakt oglašivača
Krediti OTP banke
Saznaj više
Prikazana rata odnosi se na maksimalni period otplate. Kalkulator je informativnog karaktera.
* Nakon isteka 5 godina, prelazi se na varijabilnu kamatnu stopu






















