Dvoiposoban stan na prodaju, Somborska, 1.682€, 59m²


1.682 €
29 € / m2
- Stan u zgradi
- Etažno grejanje
- Novo
- Prostorije: terasa
- Opremljenost: Prazno - interfon
- Oglas oglašava agencija pod reg. brojem 1721
- 1 parking mesto
- 1 lift
- Zgrada poseduje: podrum
Opis oglasa
BEZ PROVIZIJE ZA KUPCA. CENA KAO KOD INVESTITORA !!!
U prilici smo da Vam ponudimo moderne i funkcionalne stanove pouzdanog investitora u novoj zgradi koja se gradi na mirnoj lokaciji u gradu, zaštićenoj od gradske buke i zagađenja. Zgrada, strukture Po+Pr+4, posedovaće stanove različite strukture i to:
- stanove sa 1 spavaćom sobom (42m2 - 51m2)
- stanove sa 2 spavaće sobe (50m2 - 65m2)
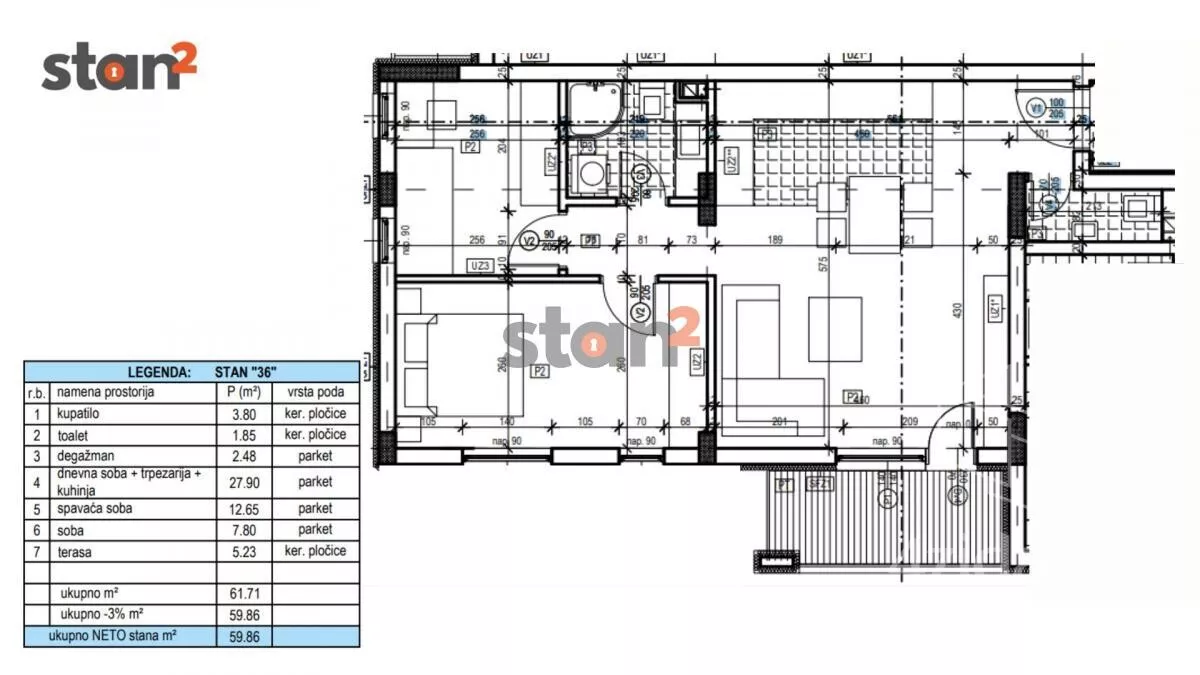
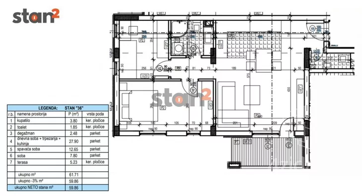
Stan koji gledate je površine 59,86 m2. Sastoji se od ulaznog hodnika, dnevne sobe sa trpezarijom i kuhinjom, 2 spavaće sobe koje su odvojene degažmanom, kupatila, toaleta i terase.. Stan je dostupan na IV spratu.
STOLARIJA - u stanu će biti postavljena kvalitetna PVC stolarija sa aluminijumskim roletnama i pripremom za komarnike.
GREJANJE - u stanu će biti razvedena kompletna instalacija za grejanje na kotao i instalacija za klimu, tako da će kupac moći da stavi vid grejanja i hlađenja kakav želi.
PODNE OBLOGE - na podu stana će biti postavljen kvalitetan 3-slojni parket, dok će u kuhinji, hodniku i kupatilu biti postavljen veoma kvalitetana keramika.
SANITARIJA - u kupatilu će biti postavljena staklena tuš kabina sa linijskim slivnikom, konzolna wc šolja sa geberitovim vodokotlićem.
BEZBEDNOST - ulazna vrata su sigurnostna blind vrata, koja ispunjavaju visoke standarde bezbednosti i akustike.
Obavezna je kupovina spoljašnjeg parking mesta po ceni od 4.000 EUR, ili unutrašnjeg po ceni od 8.000 EUR.
Cena stana je 1.682 EUR/m2 + PDV, tj. 1.850 EUR/m2 sa PDV-om. Ukoliko ste kupac prvog stana imate pravo na povraćaj PDV-a.
Rok zavrsetka je avgust 2027. godine.
Hvala što ste pogledali nekretninu iz naše ponude. Ukoliko Vas zanima ova ili neka druga nekretnina mozete nas kontaktirati na telefon 063... (prikaži broj telefona) ili na e-mail: info@stan2.rs ili nas posetite na adresi Cara Dušana, PC Dušanov Bazar, Piramida, lok. 204 (na II spratu), gde možete pogledati više fotografija, i dobiti više informacija o ovoj i sličnim nekretninama.
Agencija STAN NA KVADRAT je upisana u Registar posrednika pod rednim brojem 1721.
Pre obilaska nepokretnosti, dužni smo da od klijenta pribavimo fotokopiju lične karte, u skladu sa Zakonom o sprečavanju pranja novca i finansiranja terorizma (Član 7. i Član 17, stav 6). Molimo klijente za razumevanje, jer u slučaju da ne potvrdimo identitet, možemo snositi zakonske posledice od strane tržišne inspekcije. Takođe, prema Zakonu o posredovanju, obavezni smo da sa klijentima zaključimo Ugovor o posredovanju.
*Sačuvaj oglas uz belešku i primaj obaveštenja o njihovom pojeftinjenju ili pojavljivanju sličnih
Prikaz stana na mapi
Parkovi u blizini
- Park Svetog Save27 min
- Park složnih komšija28 min
- Park heroja NOB-a36 min

Obeležja kulture u blizini
- Ranohrišćanska grobnica5 min
- Ranohrišćanska bazilika7 min
- Zgrada Oficirskog doma10 min

Škole/Fakulteti/Vrtići u blizini
- Osnovna škola (Osnovna škola Čegar)5 min
- Srednja škola (Gimnazija 9. maj)9 min
- Vrtić (Dečiji vrtić Mazza)6 min
- Fakultet (Fakultet za pravne i poslovne studije Dr Lazar Vrkatić)9 min

- Bolnica (Bolnica Đorić)5 min
- Klinika (Family Medica poliklinika)1 min
- Teretana (Teretana Šuki)4 min
- Prodavnica (Maxi Supermarket)1 min
- Restoran (Restoran President Lux)2 min
- Kafana (Kafana Stari ambar)12 min
- Taksi stajalište (Duga taksi)25 min
- Autobuska stanica (Studenička)1 min
- Banka (Poštanska štedionica)4 min
- Pošta (Pošta Niš 3)4 min
Kontakt oglašivača
Krediti OTP banke
Saznaj više
Prikazana rata odnosi se na maksimalni period otplate. Kalkulator je informativnog karaktera.
* Nakon isteka 5 godina, prelazi se na varijabilnu kamatnu stopu


