Četvorosoban stan na prodaju, Telep, 1€, 92m²




- Stan u zgradi
- Grejanje na gas
- Novo
- Prostorije: terasa
- Oglas oglašava agencija pod reg. brojem 1405
Opis oglasa
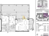
Funkcionalan, trostrano, ulično i dvorišno orijentisan četvorosoban stan u prizemlju objekta, sa prostranim dnevnim boravkom i trpezarijom, kuhinjom, tri spavaće sobe i dva kupatila. Stan ima dodatne prostorije za smeštaj garderobe.
Uz stan S1 pripada dvorište gde postoji mogućnost izrade bazena.
Kupatilo i podovi su obloženi premium keramikom, a sobe Tarkett podnim oblogama. Ugrađena je i najkvalitetnija aluminijumska stolarija, a u kupatila sanitarije premium kvaliteta.
Planirani završetak je jun 2027. godine. Moguć povrat PDV-a.
Za više informacija možete nas kontaktirati na 065... (prikaži broj telefona) ili 066... (prikaži broj telefona) , N-NEKRETNINE, broj u registru posrednika 1405, Bulevar Evrope 44/14, Novi Sad
*Sačuvaj oglas uz belešku i primaj obaveštenja o njihovom pojeftinjenju ili pojavljivanju sličnih
Prikaz stana na mapi
Parkovi u blizini
- Park Bistrica27 min
- Futoški park31 min
- Limanski park35 min

Obeležja kulture u blizini
- Jodna Banja12 min
- Dvorac Eđšeg13 min
- Kuća iz 1797. godine18 min

Škole/Fakulteti/Vrtići u blizini
- Osnovna škola (Osnovna škola Jožef Atila)9 min
- Srednja škola (Gimnazija Laza Kostić)5 min
- Vrtić (Dečiji vrtić Zemlja čuda)6 min
- Fakultet (Protestantski teološki fakultet)7 min

- Bolnica (Ginekološka bolnica Ferona)2 min
- Klinika (Poliklinika Consilium)12 min
- Teretana (EMS Studio Maxifit)5 min
- Prodavnica (Lole dućan)5 min
- Restoran (Caffe restoran Rosetto)7 min
- Kafana (Atos pub)5 min
- Taksi stajalište (Taxi prevoz Novi Sad)18 min
- Autobuska stanica (Feješ Klare - Pravoslavna crkva)3 min
- Banka (Erste Bank Ekspres ekspozitura)6 min
- Pošta (Pošta Novi Sad 21124)7 min
Kontakt oglašivača
Krediti OTP banke
Saznaj više
Prikazana rata odnosi se na maksimalni period otplate. Kalkulator je informativnog karaktera.
* Nakon isteka 5 godina, prelazi se na varijabilnu kamatnu stopu






















