Dvoiposoban stan na prodaju, SUVOBORSKA, 138.380€, 56m²




138.380 €
2.471 € / m2
- Stan u zgradi
- Grejanje na gas
- U izgradnji
- Prostorije: terasa
- Oglas oglašava agencija pod reg. brojem 1187
- Godina izgradnje: 2025.
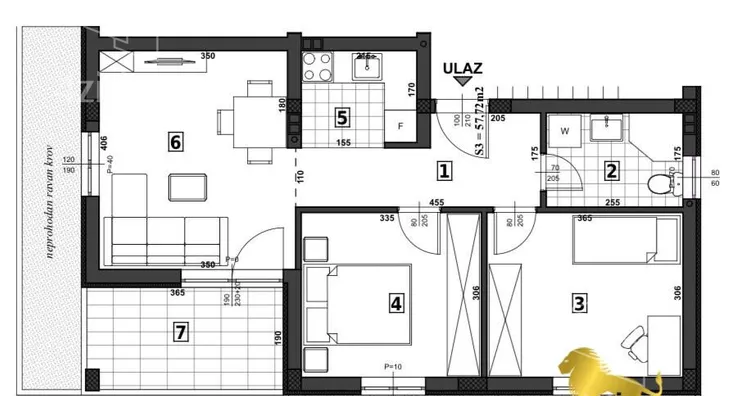
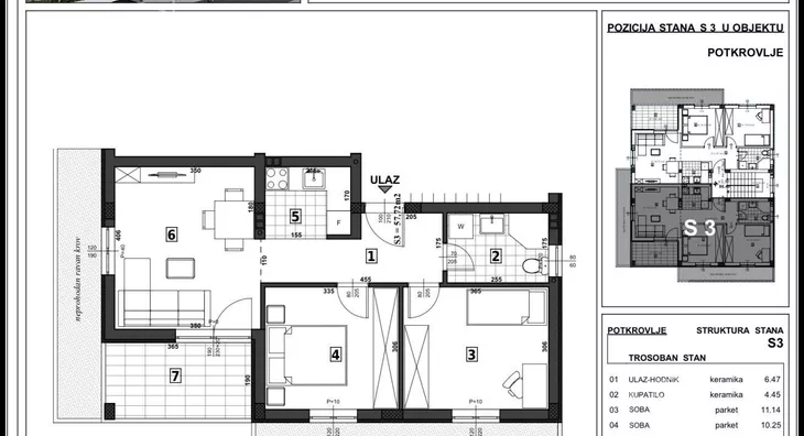
Opis oglasa
Prodaje se odličan trosoban stan u manjoj zgradi, na samoj granici Novog
Sada i Veternika u lepoj i širokoj ulici, blizu svih urbanih sadržaja.
Stan se nalazi na drugom spratu urbane vile, kvalitetno građene po svim
standardima modernog i komfornog stanovanja. Grejanje je podno na gas sa
kalorimetrima. Stan ima dnevnu sobu i dve spavaće sobe, kupatilo,
predsoblje i kuhinju koja je povezana sa dnevnom sobom i dve terase.
Postoji mogućnost i pripajanja stanu veće krovne terase, po želji kupca.
Investitor je siguran i pouzdan sa svom urednom dokumentacijom i
dozvolama i za kupce prvog stana, može se ostvariti povrat Pdv-a od 10%.
Rok završetka izgradnje je predviđen za oktobar 2026. godine.
*Sačuvaj oglas uz belešku i primaj obaveštenja o njihovom pojeftinjenju ili pojavljivanju sličnih
Prikaz stana na mapi
Kontakt oglašivača
Krediti OTP banke
Saznaj više
Prikazana rata odnosi se na maksimalni period otplate. Kalkulator je informativnog karaktera.
* Nakon isteka 5 godina, prelazi se na varijabilnu kamatnu stopu






















