Četvorosoban stan na prodaju, SUVOBORSKA, 191.269€, 95m²




191.269 €
2.013 € / m2
- Stan u zgradi
- Grejanje na gas
- U izgradnji
- Prostorije: terasa
- Oglas oglašava agencija pod reg. brojem 1187
- Godina izgradnje: 2025.
Opis oglasa
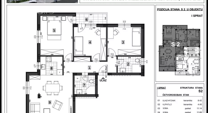
Prodaje se lep cetvorosoban stan u manjoj zgradi, urbanoj vili, na
samoj granici Novog Sada i Veternika u lepoj i širokoj ulici, blizu svih
urbanih sadržaja. Stan se nalazi na prvom spratu urbane vile,
kvalitetno građene po svim standardima modernog i komfornog stanovanja.
Grejanje je podno na gas sa kalorimetrima. Stan ima veliku dnevnu sobu,
koja je okrenuta na uličnu stranu, dok su tri spavaće sobe dvoriŝno
orijentisane. Stan ima dva kupatila, predsoblje i kuhinju koja je
povezana sa dnevnom sobom i dve terase. Pored stana se moze kupiti i
garaža u prizemlju objekta. Investitor je siguran i pouzdan sa svom
urednom dokumentacijom i dozvolama i za kupce prvog stana, može se
ostvariti povrat Pdv-a od 10%. Rok završetka izgradnje je predviđen za
oktobar 2026.
*Sačuvaj oglas uz belešku i primaj obaveštenja o njihovom pojeftinjenju ili pojavljivanju sličnih
Prikaz stana na mapi
Kontakt oglašivača
Krediti OTP banke
Saznaj više
Prikazana rata odnosi se na maksimalni period otplate. Kalkulator je informativnog karaktera.
* Nakon isteka 5 godina, prelazi se na varijabilnu kamatnu stopu






















